140.000 €
Bouwgrond 4 slaapkamers, 920 m² Jesolo, Venetië (provincie)
Kenmerken
Beschrijving
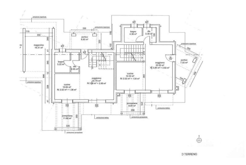
Een paar minuten van het hart van Jesolo Paese, in een rustige en goed bediende omgeving, bieden wij een bouwgrond al geplaatst met goedgekeurd project.
Het is een zeldzame kans om een moderne tweegezinswoning te creëren, ideaal als hoofdverblijf zowel als investering voor twee gezinnen of voor een woonproject met toeristische of verhuurde doeleinden.
Het project omvat de bouw van twee onafhankelijke eenheden, beide op twee niveaus, ontworpen om functionaliteit, privacy en maximale comfort te garanderen.
Op de begane grond een lichte woonkamer compleet met keuken, woonkamer en diensten, perfect om momenten van gezelligheid en ontspanning te verwelkomen, terwijl de eerste verdieping wordt gewijd aan het slaapgedeelte, met ruime slaapkamers en goed verdeelde kamers, ideaal om elke woonbehoeften te voldoen.
Voltooi het pand een grote privéopening, aangepasbaar om te genieten van tuinen, ontspanningsruimtes of pergola's, om elk seizoen buiten te leven.
Dit voorstel is een ideale oplossing voor degenen die hun op maat willen bouwen, door afwerkingen, ruimtes en materialen te kiezen op basis van hun smaak en behoeften, maar ook voor degenen die op zoek zijn naar een veilige en meerdere investeringsmogelijkheid op een van de meest gewilde plaatsen aan de Venetiaanse kust.
Laat deze kans je niet missen. Neem contact met ons op met ons op vandaag zelf om alle details te ontdekken en eindelijk leven te geven aan uw woonproject in Jesolo!
ENERGIEKLASSE:
Details
- Woningtype
- Bouwgrond
- Staat
- N/A
- Woonoppervlakte
- 920 m²
- Slaapkamers
- 4
- Badkamers
- 4
- Tuin
- 661 m²
- Energielabel
- Referentie
- T92
Afstand van:
- Luchthavens
23.0 km - Venezia VCE - Marco Polo
35.0 km - Venezia TSF - Treviso
73.0 km - Trieste TRS - Ronchi Dei Legionari
135.0 km - Verona VRN - Valerio Catullo
- Afrit van de snelweg
- 15.3 km
- Ziekenhuis
- 4.6 km
- Kust
- 4.9 km
- Skigebied
- 49.6 km
In de nabijheid van deze woning
- Winkels
830 m - Supermarkt - Iper Tosano
870 m - Winkelcentrum - I Giardini Di Jesolo
900 m - Warenhuis - Upim
1.4 km - Bakkerij - Panificio Visentin
- Uit eten
900 m - Restaurant - Agriturismo Antiche Mura
910 m - Bar - Central Bar
1.4 km - Café - Bottega del Caffè
1.4 km - Ijssalon
- Sportieve activiteiten
480 m - Sportcentrum
1.2 km - Fitnessruimte - fitness studio trainer
4.9 km - Golfclub - Golf Club Jesolo
26.8 km - Manege
- Scholen
790 m - School
15.9 km - Hogeronderwijsinstelling - BigRock
23.4 km - Universiteit - Global Campus of Human Rights
- Apotheek
- 1.4 km - Apotheek - Farmacia all'Ascensione
- Dierenarts
- 2.1 km - Dierenarts - Poliambulatorio Veterinario Ca'Silis
Informatie over Jesolo
- Hoogte
- 2 m boven zeeniveau
- Oppervlakte
- 96.4 km²
- Landvorm
- Vlakte
- Inwoners
- 26511
Neem contact op met de makelaar
Corso Silvio Trentin, 28, San Dona' di Piave, Venezia
+39 0421 331013 / +39 335 6200088
Wat vind u van de kwaliteit van deze advertentie?
Help ons uw Gate-away-ervaring te verbeteren door feedback te geven over deze advertentie.
Houd alstublieft niet rekening met de woning zelf, maar alleen met de kwaliteit van de presentatie.


