1.140.000 €
Appartement 5 slaapkamers, 190 m² Roma, Rome (provincie)
Kenmerken
Beschrijving
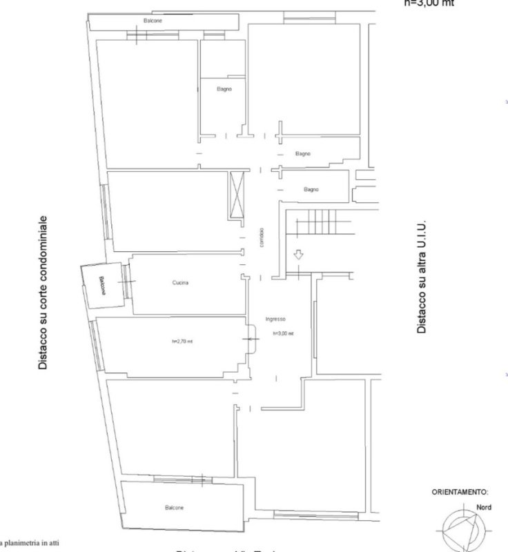
Tussen Piazza Varano en Corso Triëst, in een elegant gebouw met een halfdaagse conciërgeservice. Wij bieden de verkoop aan van een prachtig appartement op de tweede verdieping, 200 vierkante meter met terras en twee balkons. Het appartement bestaat uit een grote inkomhal, woonkamer met uitgang naar het terras, grenzend aan de woonkamer een grote studeerkamer, vier tweepersoonsslaapkamers, waarvan één met balkon, keuken met balkon en drie badkamers, twee met douche en één met jacuzzi. Het pand lijkt zeer licht te zijn voor zowel de driedubbele belichting als voor de zeer open uitzichten. Intern is het in goede staat van instandhouding als het onlangs niet is gerenoveerd, parket van hoge kwaliteit in alle kamers en houten armaturen. Het bouwtype stelt u in staat om het volledig te moderniseren met maximaal gebruik van de grote ruimtes. De woning beschikt over een comfortabele kelder. De woning is verhuurd tot 31 augustus 2025. De strategische ligging, de nabijheid van alle openbare vervoersmiddelen, in openbare en privé-scholen, restaurants en diverse commerciële activiteiten, maken deze woning uitstekend als investeringsgebruik.
Details
- Woningtype
- Appartement
- Staat
- Enige restauratie
- Woonoppervlakte
- 190 m²
- Slaapkamers
- 5
- Badkamers
- 3
- Terras
- 14 m²
- Energielabel
- 14,00
- Referentie
- Via Topino - Appartamento con terrazzo
Afstand van:
- Luchthavens
15.0 km - Roma CIA - Ciampino
25.0 km - Roma FCO - Fiumicino
130.0 km - Perugia PEG - S. Egidio
149.0 km - Pescara PSR - Pasquale Liberi
- Afrit van de snelweg
- 2.7 km
- Ziekenhuis
- 440 m - Centro Medicina Nucleare Italiano Villa Bianca
- Kust
- 27.3 km
- Skigebied
- 41.1 km
In de nabijheid van deze woning
- Winkels
200 m - Supermarkt
220 m - Slagerij - Alimentari
450 m - Snoepwinkel - Sal de Riso
480 m - Banketbakkerij - Sal De Riso
- Uit eten
120 m - Fast food restaurant - McDonald's
150 m - Bar - Paris Bar
170 m - Restaurant - Trattoria Verbano
240 m - Café
- Sportieve activiteiten
1.2 km - Sportcentrum - multisport
1.3 km - Fitnessruimte - Anytime Fitness - Roma Viale Libia
2.5 km - Manege
5.9 km - Golfclub - Parco di Roma Golf Club
- Scholen
260 m - School - I.C. Volsinio
340 m - Universiteit - LUISS
1.8 km - Hogeronderwijsinstelling - DeRose Method Parioli
- Apotheek
- 250 m - Apotheek
- Dierenarts
- 360 m - Dierenarts - Dr. Fabrizio Ragazzini
Informatie over Roma
- Hoogte
- 20 m boven zeeniveau
- Oppervlakte
- 1 km²
- Landvorm
- Vlakte
- Inwoners
- 2770226
Kaart
Neem contact op met de makelaar
VIA TOPINO 26, Roma, Roma
0689872581
Wat vind u van de kwaliteit van deze advertentie?
Help ons uw Gate-away-ervaring te verbeteren door feedback te geven over deze advertentie.
Houd alstublieft niet rekening met de woning zelf, maar alleen met de kwaliteit van de presentatie.


